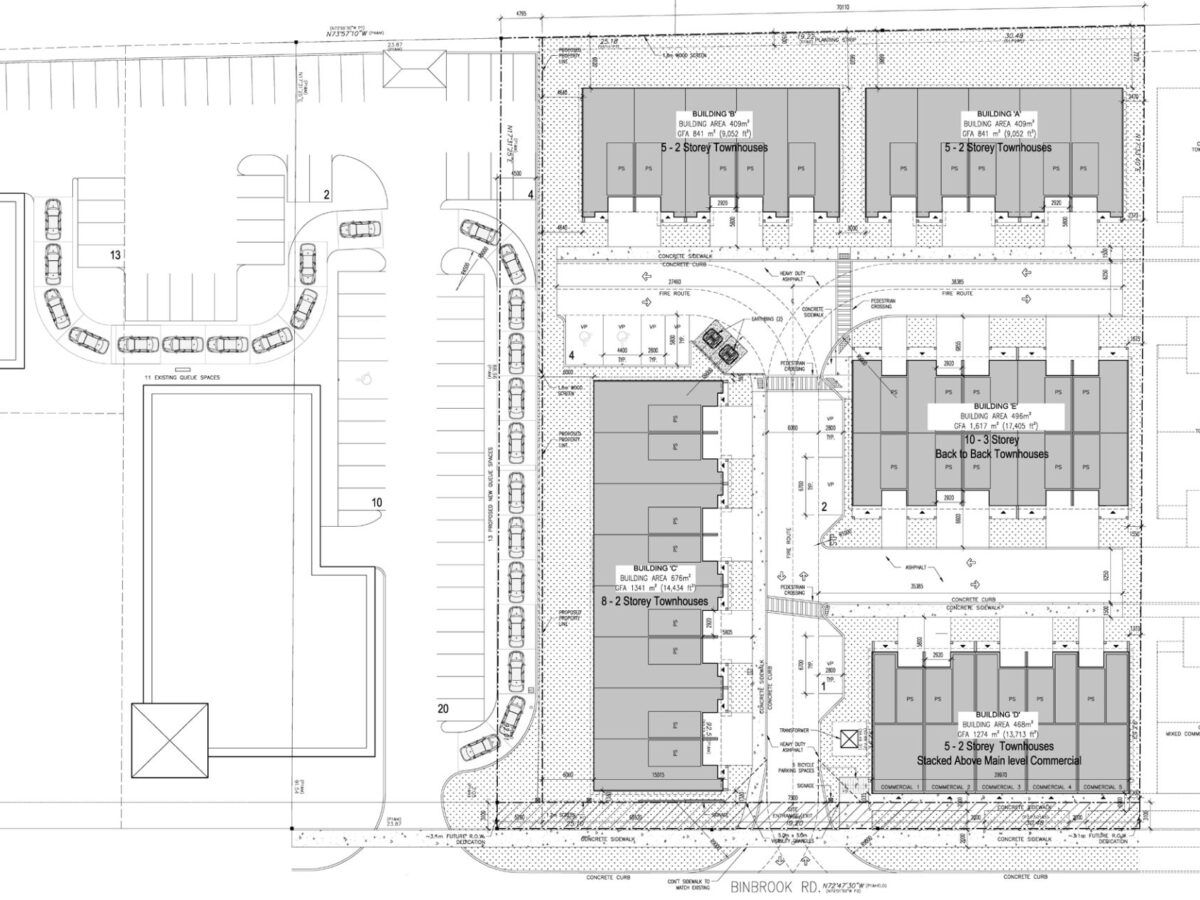
The 7-2 vote approved new 33 dwelling units in Binbrook’s village core, and expands queue space for a Tim Hortons drive-thru
TPR Hamilton | Hamilton's Civic Affairs News Site
Comprehensive Coverage of Hamilton's Civic Affairs
The 7-2 vote approved new 33 dwelling units in Binbrook’s village core, and expands queue space for a Tim Hortons drive-thru