The twenty-one hearings scheduled for the next Committee of Adjustment meeting encapsulate how Hamilton is intensifying.
On September 10, 2024, there are applications to divide large lots into two with the demolition of a single home to be replaced by two, four applications for additional dwelling units, one conversion of an apartment building locker room into a bachelor unit, and a height limit variance to permit solar panels on a roof.
Severing Old Large Lots to Add More Housing
There are five applications to divide large lots with existing single detached homes into two lots: in some cases, the existing house will be demolished to make way for two.

Drawings submitted to the Committee of Adjustment
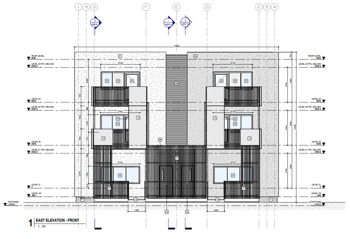
378 East 25th Street: A Six-Unit Multiplex Designed as Two Semi-Detached Houses with ADUs
One of these applications, at 378 East 25th Street in Ward 7, proposes a six-unit multiplex to replace one existing house.
Legally, the application is to build two semi-detached single-family houses, each with two additional dwelling units.
In total, the new building is proposed to have 18 bedrooms, three of each of the six units.

Drawings submitted to the Committee of Adjustment
As-of-right, each semi-detached house is permitted one additional dwelling units.
Hamilton’s parking requirements state each semi-detached house must have one parking spot.
Tyros Development Ltd is requesting a waiver of the parking requirement and an additional dwelling unit for each semi-detached home.
City staff comments on the request will be released no later than September 6.

On Friday, August 23, shortly after 10:00 a.m., the property had overgrown grass.
There were many cars parked on the street. Many of the homes had two, and sometimes three, vehicles in the driveway.
The Committee of Adjustment does not have jurisdiction over property standards issues.
Additional Dwelling Units, Of Note
The owner(s) of 17 Percy Court in Ward 6 are seeking to add an additional dwelling unit. They need a side yard setback variance.
Ward 6 Councillor Tom Jackson generally opposes ADUs. This is one to watch to see if Jackson asks the CoA to reject.
The owner(s) of 2016 Regional Road 56 in Glanbrook are seeking permission for a ADU. They need variance permission due to their lot being too small for as-of-right permissions.
The property is serviced by a private septic system. City staff have recommended denial in many applications involving septic systems to ensure groundwater protection.
In Flamborough, the owner(s) of a semi-detached home at 371 Skinner Road are seeking to build an additional dwelling unit. It requires parking, and they are seeking an exception for tandem parking in the driveway.
In similar applications elsewhere, City staff have not recommended approval of tandem parking.
Landscaping “Accessory Use” Expansion
Hamilton has strict rules regarding landscaping businesses using rural lands to store equipment and operations. In short, it is a matter of taxation. Landscaping is a commercial business. When housed on agricultural lands, the business is taxed at a lower rate.
CSL Group operates from a rural location at 1326 Butter Road in Ancaster. They have applied to build a new “secondary use structure (Landscape Contracting Establishment)” that is more than triple the permitted size.
The City’s zoning regulations limit a landscaping secondary use structure to 250.0 square metres, CSL is asking to build a 885.0 square metre structure.
A Solar Roof Needs a Variance

The panels require a height variance
Zoning bylaws lag behind changes to design and construction. Take, for example, solar panels. Panels “increase” the maximum height of a structure.
Kiwanis Homes plans to increase solar power generation as part of its 1540 Upper Wentworth Street redevelopment.
The solar panels add 0.3 metres to the structure’s height, exceeding the maximum permitted 4.0 metres.
As the energy production of solar panels continues to increase, the City’s zoning bylaws will need to be updated. For now, these “exceptions” must be rubber-stamped by the CoA.
Meeting time: September 10, 2024, beginning at 1:00 p.m. in the Council Chamber at Hamilton City Hall
Agenda: https://pub-hamilton.escribemeetings.com/Meeting.aspx?Id=89441f61-12e9-4547-9ff3-9968d9bc93b3
Livestream: City of Hamilton YouTube page.
Production Details v. 1.0.0 Published: August 26, 2024 Last updated: August 26, 2024 Author: Joey Coleman Update Record v. 1.0.0 original version
