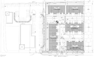
Hamilton Planning Committee Approves 33-Dwelling Binbrook Mixed-Use Development on 7-2 Vote
The 7-2 vote approved new 33 dwelling units in Binbrook’s village core, and expands queue space for a Tim Hortons drive-thru
Copy and paste this URL into your WordPress site to embed
Copy and paste this code into your site to embed